
产品名称:Q41F/H/Y美标球阀
产品标签:球阀,美标球阀
更新时间:2019/6/10 10:08:45
上一个产品: Q41F46衬氟球阀
下一个产品:Q41F/Y日标球阀
在线客服:
在线订购:在线订购
产品详情
试验项目 |
壳体试验 |
密封试验 |
上密封试验 |
气密封试验 |
|||||
介质 |
水 |
气 |
|||||||
单位 |
MPa |
Lbf/in2 |
MPa |
Lbf/in2 |
MPa |
Lbf/in2 |
MPa |
Lbf/in2 |
|
压力品级 (磅级) |
150 |
3.1 |
450 |
2.2 |
315 |
2.2 |
315 |
0.5-0.7 |
60-100 |
300 |
7.8 |
1125 |
5.6 |
815 |
5.6 |
815 |
|||
400 |
10.3 |
1500 |
7.6 |
1100 |
7.6 |
1100 |
|||
600 |
15.3 |
2225 |
11.2 |
1630 |
11.2 |
1630 |
|||
900 |
23.1 |
3350 |
16.8 |
2440 |
16.8 |
2440 |
|||
名称 |
质料 |
||||||||
阀体 |
A216WCB |
A352 LCB |
A217WC6 |
A217WC9 |
A217 C5 |
A351 CF8 |
A351 CF8M |
A351 CF3 |
A351 CF3M |
球体 |
A182 F6 |
A182 F304 |
A182 F316 |
A182 F304L |
A182 F316L |
||||
阀杆 |
A182 F6 |
A182 F304 |
A182 F316 |
A182 F304L |
A182 F316L |
||||
手柄 |
KTH350-10 |
||||||||
螺柱 |
A193-B7 A320-L7 A193-B8 |
||||||||
螺母 |
A194-2H A194-7 A194-8 |
||||||||
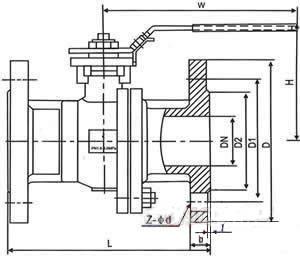
型号 |
规格 (mm) |
尺寸 (mm) |
||||||||
inch |
DN |
L |
D |
D1 |
D2 |
b |
Z-Φd |
H |
W |
|
Q41F/H/Y-150Lb |
1/2″ |
15 |
108 |
89 |
60.5 |
35 |
12 |
4-Φ15 |
68 |
115 |
3/4″ |
20 |
117 |
98 |
70 |
43 |
12 |
4-Φ15 |
75 |
130 |
|
1″ |
25 |
127 |
108 |
79.5 |
51 |
12 |
4-Φ15 |
85 |
150 |
|
11/4″ |
32 |
140 |
117 |
89 |
64 |
13 |
4-Φ15 |
96 |
190 |
|
11/2″ |
40 |
165 |
127 |
98.5 |
73.2 |
15 |
4-Φ15 |
107 |
230 |
|
2″ |
50 |
178 |
152 |
120.7 |
92 |
16 |
4-Φ19 |
118 |
240 |
|
21/2″ |
65 |
190 |
177.8 |
139.7 |
104.7 |
18 |
4-Φ19 |
145 |
280 |
|
3″ |
80 |
203 |
190.5 |
152.4 |
127 |
19 |
4-Φ19 |
160 |
310 |
|
4″ |
100 |
229 |
229 |
190.5 |
157 |
24 |
8-Φ19 |
185 |
330 |
|
5″ |
125 |
356 |
254 |
216 |
185.7 |
26 |
8-Φ22 |
230 |
600 |
|
6″ |
150 |
394 |
279 |
241.3 |
216 |
26 |
8-Φ22 |
260 |
800 |
|
8″ |
200 |
457 |
343 |
298.5 |
270 |
29 |
8-Φ22 |
310 |
1000 |
|
10″ |
250 |
533 |
406 |
362 |
324 |
31 |
12-Φ25 |
350 |
1200 |
|
型号 |
规格(mm) |
尺寸 (mm) |
||||||||
inch |
DN |
L |
D |
D1 |
D2 |
b |
Z-Φd |
H |
W |
|
Q41F/H/Y-300Lb |
1/2″ |
15 |
140 |
95 |
66.5 |
35 |
15 |
4-Φ15 |
72 |
115 |
3/4″ |
20 |
152 |
117 |
82.5 |
43 |
16 |
4-Φ19 |
75 |
130 |
|
1″ |
25 |
165 |
124 |
89 |
51 |
18 |
4-Φ19 |
85 |
150 |
|
11/4″ |
32 |
178 |
133 |
98.5 |
64 |
19.5 |
4-Φ19 |
95 |
180 |
|
11/2″ |
40 |
190 |
156 |
114.3 |
73.2 |
21 |
4-Φ22 |
110 |
230 |
|
2″ |
50 |
216 |
165 |
127 |
92 |
23 |
8-Φ19 |
120 |
240 |
|
21/2″ |
65 |
241 |
190.5 |
149.4 |
104.7 |
26 |
8-Φ22 |
150 |
280 |
|
3″ |
80 |
283 |
210 |
168.5 |
127 |
29 |
8-Φ22 |
165 |
310 |
|
4″ |
100 |
305 |
254 |
200.2 |
157 |
32 |
8-Φ22 |
190 |
330 |
|
5″ |
125 |
381 |
279 |
235 |
185.7 |
35 |
8-Φ22 |
240 |
600 |
|
6″ |
150 |
403 |
318 |
270 |
216 |
37 |
12-Φ22 |
270 |
800 |
|
8″ |
200 |
502 |
381 |
330 |
270 |
42 |
12-Φ25 |
315 |
1000 |
|
10″ |
250 |
568 |
445 |
387.5 |
324 |
48 |
16-Φ29 |
380 |
1200 |
|
型号 |
规格 (mm) |
尺寸(mm) |
||||||||
inch |
DN |
L |
D |
D1 |
D2 |
b |
Z-Φd |
H |
W |
|
Q41F/H/Y-600Lb |
1/2″ |
15 |
165 |
95 |
66.5 |
35 |
15 |
4-Φ15 |
88 |
115 |
3/4″ |
20 |
190 |
118 |
82.5 |
43 |
16 |
4-Φ19 |
98 |
130 |
|
1″ |
25 |
216 |
124 |
89 |
51 |
18 |
4-Φ19 |
105 |
150 |
|
11/2″ |
40 |
241 |
156 |
114.3 |
73.2 |
23 |
4-Φ22 |
135 |
180 |
|
2″ |
50 |
292 |
165 |
127 |
92 |
26 |
8-Φ19 |
155 |
240 |
|
3″ |
80 |
356 |
210 |
168.2 |
127 |
32 |
8-Φ22 |
175 |
280 |
|
4″ |
100 |
432 |
273 |
216 |
157 |
38 |
8-Φ25 |
210 |
330 |
|
6″ |
150 |
559 |
356 |
292 |
216 |
48 |
12-Φ29 |
340 |
800 |
|
8″ |
200 |
660 |
419 |
349 |
270 |
56 |
12-Φ32 |
400 |
1000 |
|
10″ |
250 |
787 |
508 |
432 |
324 |
64 |
16-Φ35 |
440 |
1200 |
|
![]() |





