
产品名称:ZCZG高温高压电磁阀
产品标签:电磁阀,高温高压电磁阀
更新时间:2019/5/9 9:53:55
上一个产品: ZCA真空电磁阀
下一个产品:ZCM煤气电磁阀
在线客服:
在线订购:在线订购
产品详情
ZCZG高温高压电磁阀产品概述:
ZCZG/ZCZH高温高压电磁阀是先导直动型的电磁阀,,,,,其通用介质规模较广,,,,,可划分使用于水、轻油、重油、非侵蚀性气体及蒸汽等流体,,,,,如电站抽气管道疏水系统和蒸发器的排气系统中,,,,,主要是对管道中的介质举行双位自动调理和远程控制。。。。。
结构特点
耐高温:接纳金属硬密封,,,,,提高了使用温度。。。。。介质流体温度可达425℃
耐磨:选材合理,,,,,阀杯和导向套间巧妙地使用流体的润滑作用,,,,,镌汰磨损。。。。。
接纳杠杆原理包管线圈和阀体彻底隔离
耐高温:接纳金属硬密封,,,,,提高了使用温度。。。。。介质流体温度可达425℃
耐磨:选材合理,,,,,阀杯和导向套间巧妙地使用流体的润滑作用,,,,,镌汰磨损。。。。。
接纳杠杆原理包管线圈和阀体彻底隔离
结构原理
电磁阀电磁铁通电时,,,,,连杆被提升,,,,,发动转轴转动,,,,,副阀翻开。。。。。由于副阀被开启,,,,,
主阀阀杯上部的压力流体被倾轧,,,,,因此主阀阀杯下部的压力比上部高,,,,,这样下部的压力将主阀阀杯向上推开。。。。。主阀被翻开后,,,,,上下压力相等,,,,,阀杯在电磁力、上下压力作用下,,,,,置于平衡状态,,,,,阀门开通。。。。。断电时在衔铁自重及返回弹簧作用下,,,,, 关下副阀,,,,,副阀关闭后,,,,,随之主阀阀杯上部的压力升高而将主阀阀杯压下,,,,,抵达断流密封作用,,,,,阀门关闭。。。。。
电磁阀电磁铁通电时,,,,,连杆被提升,,,,,发动转轴转动,,,,,副阀翻开。。。。。由于副阀被开启,,,,,
主阀阀杯上部的压力流体被倾轧,,,,,因此主阀阀杯下部的压力比上部高,,,,,这样下部的压力将主阀阀杯向上推开。。。。。主阀被翻开后,,,,,上下压力相等,,,,,阀杯在电磁力、上下压力作用下,,,,,置于平衡状态,,,,,阀门开通。。。。。断电时在衔铁自重及返回弹簧作用下,,,,, 关下副阀,,,,,副阀关闭后,,,,,随之主阀阀杯上部的压力升高而将主阀阀杯压下,,,,,抵达断流密封作用,,,,,阀门关闭。。。。。
型号说明

手艺参数
介质温度℃
|
ZCZG
|
≤250
|
|||||||
ZCZH
|
≤400
|
||||||||
公称压力(MPa)
|
ZCZG
|
2.5
|
|||||||
ZCZH
|
4.0
|
||||||||
事情压差(MPa)
|
ZCZG
|
0.1-2.5
|
|||||||
ZCZH
|
0.1-4.0
|
||||||||
公称通径(MPa)
|
15
|
20
|
25
|
32
|
40
|
50
|
65
|
80
|
100
|
功耗
|
130VA
|
480VA
|
|||||||
电源电压
|
AC220V DC 24V 其余规格可作特殊订货
|
||||||||
额定流量系数(KV)
|
3.8
|
7.4
|
10.3
|
18.8
|
25.7
|
41
|
58
|
85
|
154
|
走漏量(ml/min)
|
按JB/T7352-94·F划定
|
||||||||
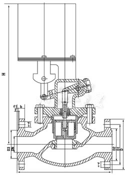
![]() |
装置尺寸
DN
|
L
|
H
|
D
|
D1
|
D2
|
D3
|
b
|
f1
|
f
|
n-d
|
10
|
160
|
298
|
90
|
60
|
34
|
41
|
16
|
4
|
2
|
4-Ø14
|
15
|
160
|
298
|
95
|
65
|
39
|
45
|
16
|
4
|
2
|
4-Ø14
|
20
|
200
|
304
|
105
|
75
|
50
|
55
|
16
|
4
|
2
|
4-Ø14
|
25
|
200
|
304
|
115
|
85
|
57
|
65
|
16
|
4
|
2
|
4-Ø14
|
32
|
200
|
314
|
140
|
100
|
65
|
78
|
18
|
4
|
2
|
4-Ø18
|
40
|
260
|
460
|
150
|
110
|
75
|
85
|
18
|
4
|
3
|
4-Ø18
|
50
|
300
|
460
|
165
|
125
|
87
|
100
|
20
|
4
|
3
|
4-Ø18
|
65
|
290
|
433
|
185
|
145
|
109
|
120
|
22
|
4
|
3
|
8-Ø18
|
80
|
310
|
433
|
200
|
160
|
120
|
135
|
22
|
4
|
3
|
8-Ø18
|
100
|
350
|
461
|
235
|
190
|
149
|
160
|
24
|
4.5
|
3
|
8-Ø22
|





